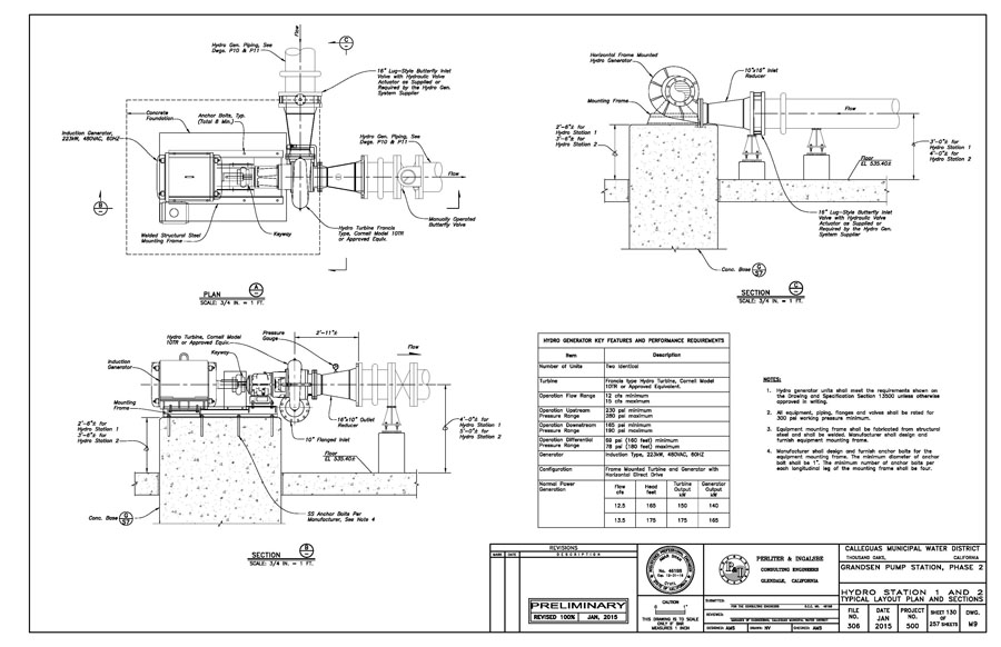
Hydro Power Generators at Grandsen Pump Station:
- Owner: Calleguas Municipal Water District
- Cost: Project Cost - $20,500,000, Cost of Hydro Generators and Associated Facilities - $2,500,000 (estimated)
Calleguas serves water to approximately 75% of the Ventura County, California. Water with higher grade line (pressure) at City of Simi Valley on east side is conveyed through pipeline system to City of Oxnard on west side and delivered to many cities along the route. In general, ground elevations drops gradually from eastern end to western end of its service area. The pressure along the pipeline routes is reduced at intervals to obtain optimal distribution system.
Such drop in ground elevations and excess pressure in the pipeline system also provides opportunity to Calleguas to harness the energy in producing electrical power. Grandsen Pump Station is the facility where two hydro generators capable of producing with 400 KW of electric power are considered. The site is comprised of numerous other major components, including five pumps with 56,000 gpm flow capacity, two pressure regulating stations with 36,000 gpm flow capacity, 6" through 72" pipes, HVAC systems, buildings, cranes, electrical equipment and system, and many more.
Perliter & Ingalsbe performed feasibility and economic analyses, preliminary planning of the facility, and detail design. The project is expected to be under construction in February 2016.
Major Components and Special Features:

- Two 200KW (total 400KW), 480VAC hydro generators
- Francis type turbine
- Induction type generator
- Generator appurtenances and auxiliary devices
- Electrical switchgears
- Motor control center
- Instrumentation and controls

- PLCs, alarms, and signals
- NGO Meter
- Step-up transformer 480VAC/4,160VAC
- 20", and 16" welded steel piping and valves
- 12" pressure relief valve system for surge control
- Special provisions for slow start-up and closure
- Masonry building with special architectural treatment







