La Granada Pump Station
- Owner: City of Thousand Oaks
- Cost: $1,350,000 (estimated)
In a separate study performed by Perliter & Ingalsbe, it was determined that a new pump station is required to enhance water supply to City’s Wilder Pressure Zone from the lower La Granada Pressure Zone. The study also showed that the most suitable site for the new pump station is at the existing La Granada Reservoir.
Perliter & Ingalsbe was engaged to provide engineering services, including preliminary planning, detail design, permitting, traffic controls, bidding services, and construction support services for the construction of the new La Granada Pump Station.
Major Components and Special Features:

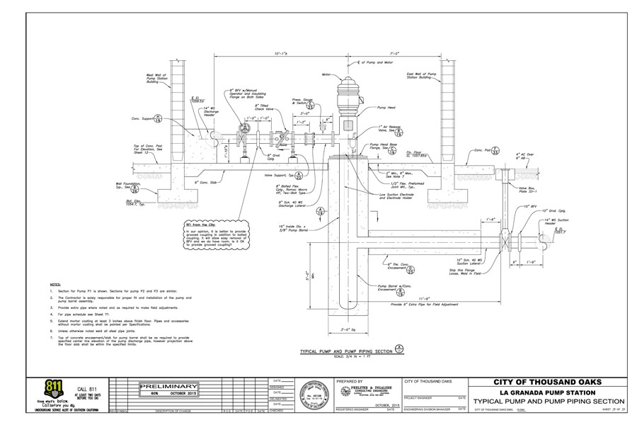
- Three vertical turbine pumps with total capacity of 2250 gpm
- Three 480VAC, 50HP motors
- Surge tank
- 480VAC electrical system and equipment, including electrical substation, switchgear and transformers,
- 20/240 VAC electrical systems and equipment, including switchgears, transformers, and panel boards
- Instrumentation, controls, SCADA and lighting

- 6" through 16" welded steel pipes and valves
- Water surge arresting system
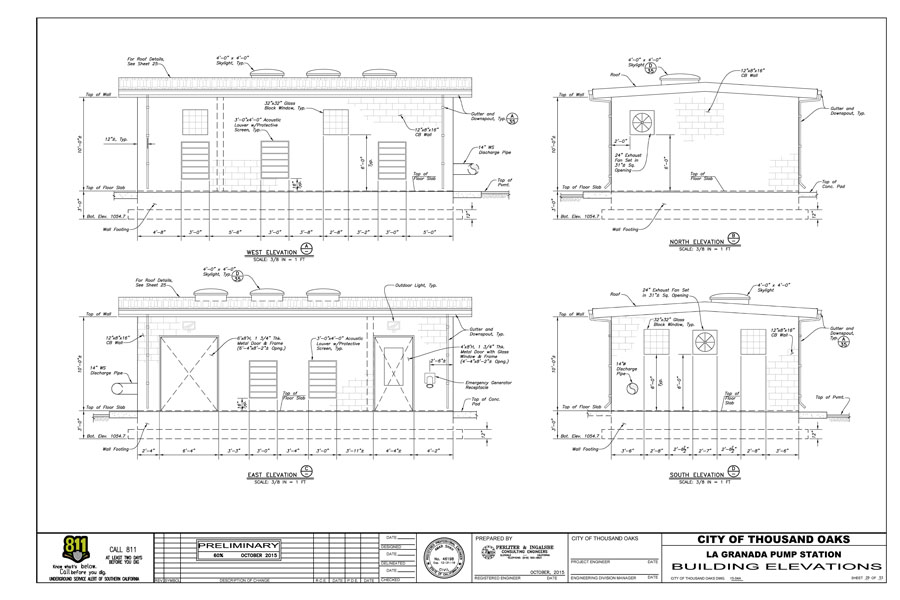
- 34'x20'x10' high masonry building with two rooms, louvers, skylights, glass block windows, and special architectural treatments
- Grading, paving, and other site improvements
- Landscaping and irrigation system
- Security features, including intrusion alarms, etc.

